出租屋修整攻略(第二搞)
好多年前帮朋友修整了一次:https://yyidea.com/1036/
现在帮自己修整一次,因为终于有了一次机会。
从想租房到落地的一个多月期间,这周边房租居然涨了两百大洋,结果线下找一个中介不想给谈价,再找一个中介不想找房,最后还得线上找,还算轻松的敲定一个小公寓;接着就要做这几件事了:
① 按照自己需求重新进行布局设计;
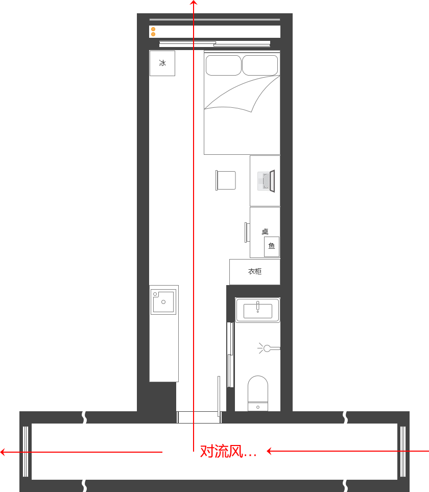
先明确自己的需求:要稳定的两个可放电脑的书桌和健身运动区域;仅作为办公和临时小住,不需要太多收纳和餐桌。
再分析公寓开间2.6米不到,按照一般的布局到阳台的路紧凑、无法放下书桌、也没空间运动;不过衣柜是推拉门,原来的桌子可以替换,便给了思路——把床旋转90°靠阳台,让出2米空间刚好可放两张桌子;把不用的小冰箱变为床头柜,让出2米×2米的空间,达成。
若工作室能运作顺利,有机会把1.5的床换成沙发床,空间就更宽裕了……

② 选择合适的家具,DIY一个键盘区;
本来就有站立办公台,但简易的桌子没有能拉开距离的键盘托架,桌子结构也没法安装普通键盘托——好的键盘托又太贵了——忽然灵机一动,选择了简易的升降桌,有轮子、能调高度、够放键盘也能托起手肘——达成。

③ 做好纱门(纱帘),防了蚊虫,有了通风;
这是一个朝北的公寓,只有阳台一个通风口;不过当把进门纱帘做上,打开入户门的时候,便有了意外的收获:东西向的过道小窗户送来凉风徐徐;就是睡觉时候少点风。
所以:真的不是只有南北朝向才能通风的哦。

只是没想到纱帘短了,够不着地面;刚好上任租客留下防猫爬柜底的板子,加上手头的软磁铁,刚好弄成小门槛。再加上布帘,挡住门口的视线。
④ 堵各种下水口、地漏,防虫防臭;
为了封堵排水口,但没曾想一碰就断了下水管,只好换了个……除了够不着的洗衣机下水外,其它都已封堵。
⑤ 修柜子、调马桶盖、洗空调、搞卫生;
柜子的推拉门靠外的门扇底部已经开裂,即不好挪动也容易掉出;将就数日后某天灵机一动,把两扇门互换了;虽然推拉不算顺畅,但已不脱轨,可正常使用。
但没想到上一租客留下了无处不在的,藏在各种缝隙(踢脚线等)中的毛……
⑥ 未发现的渗水
在看房的时候,我避开了一家渗水后修补了厕所外墙但没补厕所地面的房子;却没想到自己选的这个也有漏水问题,也没看到厕所瓷砖掉了一片;于是只能尝试做瓷砖上防水,暂时停留了渗水,外墙踢脚线也不再潮湿生虫。
⑦ 必须的断舍离:都是猫毛的扫把、自身容易脏的垃圾桶、房东同意的旧桌子、已经脏污的拖布……
好活当赏
星铃丹Q群:86821220
星铃丹Q号:86821220
星铃丹微信:86821220